2/3 pokoje, kuchnia ze spiżarnią, ogródek, do rem.
Dąbrowa Górnicza Pokaż na mapie ›
Dodane: Czwartek, 19 Marzec, 2026 20:23
250 000 zł
4386 zł/m2
Szczegóły ogłoszenia
- Kategoria: Mieszkania / Sprzedaż
- Powierzchnia:57 m2
- Liczba pokoi:3 pokoje
- Zabudowa:Blok
- Liczba pięter:4 piętra
- Rynek:Pierwotny
- Rok budowy:1980
- Sprzedaż:Pośrednik
- Cena: 250 000 zł / 4386 zł/m2
Opis oferty
Oferta dodana za pomocą Multiportalu BeBrokerSPRZEDAŻ PRYWATNA (bez prowizji)
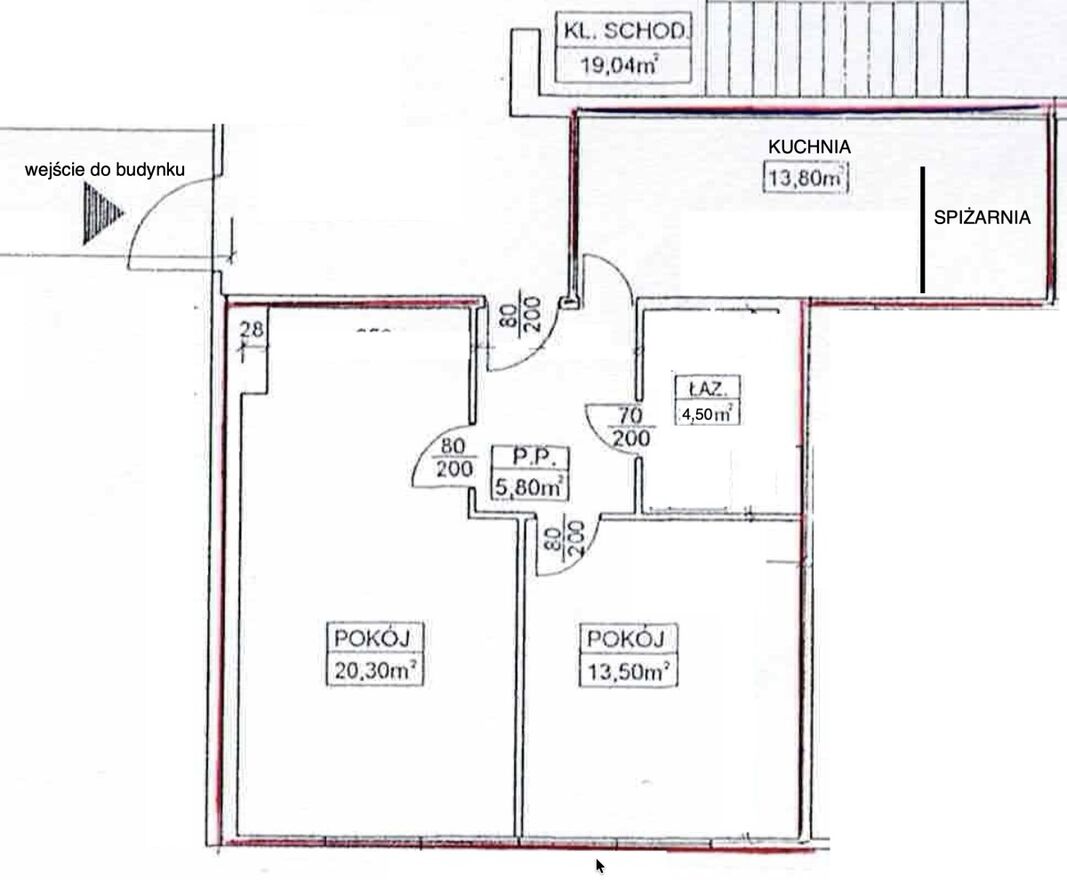
Mieszkanie do remontu na parterze budynku z bardzo łatwym dostępem dla osób niepełnosprawnych. Powierzchnia mieszkalna to 60m2, na które składają się kuchnia ze spiżarnią, przedpokój, łazienka i obecnie trzy pokoje. Pierwotnie mieszkanie było dwupokojowe lecz jeden z pokoi został podzielony na dwa (jeden bez okna służył jako duża garderoba). Ściankę działową można w łatwy sposób usunąć. Oglądanie możliwe każdego dnia.
Telefon: 501 - pokaż numer telefonu -
Sprawdź zainteresowanie tym ogłoszeniem
Wyświetlenia
Data dodania
Ostatnio widziany
Obserwujących
Wysłane zapytania
Odsłony telefonu
Powiadom o podobnych ogłoszeniach
Lokalizacja: Dąbrowa Górnicza
Kategoria: Nieruchomości » Mieszkania » Sprzedaż
Cena: od 212500 zł do 287500 zł Powierzchnia : od 48 m2 do 66 m2
Chcę otrzymywać powiadomienia o nowych ofertach
- Wypromuj ogłoszenie
- Zgłoś naruszenie
- Drukuj ulotkę
- Edytuj/usuń ogłoszenie
- Udostępnij ogłoszenie
- Dodaj na Facebook
































